3-комнатная квартира 80 м² на 10 этаже
8 400 000 руб.
Цена за м2: 105 000 руб.
3-комнатная квартира
Вам предоставят информацию по данному
объекту сотрудники отдела новостроек
Описание
Большая квартира планировки евро-3 с премиальной (!) предчистовой отделкой.
Подходит под ипотеку 6%.
Есть похожий вариант 3-комнатной планировки с тремя спальнями и кухней 12,5 кв.м. т о г о же метража по. т о й. же цене.
Качество ремонта беспрецедентное:
-Стены выровнены по маякам и отшпатлеваны с установкой металлических уголков (!)
-Потолки выровнены и покрашены, не требуют вложений.
-Готовая электроразводка до розеток и выключателей, - такое уже редко встречается в новостройках.
-Ровная полусухая стяжка.
-Окна - евродерево (!), замки от детей.
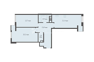
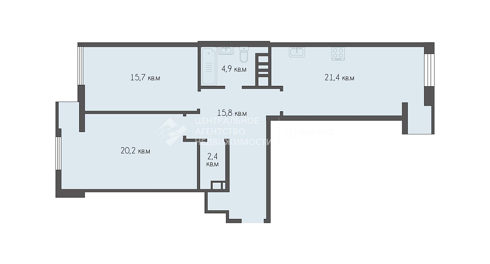
Планировка наиболее удачная во всем доме:
-Кухня-гостиная 21,4 кв.м с котлом в зоне кухни (не у окна, как у многих, что было бы проще и дешевле застройщику)
-Две просторные комнаты 16 и 20 кв.м.
-Два санузла - гостевой и хозяйский
-Окна квартиры выходят на разные стороны дома, хорошая инсоляция и проветривание
-"Грязная зона" отдельно от жилой
Всё здесь сделано качественно для удобства пользователей!
Новый сданный дом между садиком и школой - мечта любой семьи с детьми.
Лифт в подземный паркинг.
Машиноместа в виде отдельных закрывающихся боксов (не просто краска на полу).
Над машиной не проходят общедомовые коммуникации, только система пожаротушения.
Первый этаж занимают объекты социальной сферы - продукты, пункты ВЗ, аптека и т.п.
Дом находится «на второй линии», нет шума дорог, но остановки транспорта рядом.
В 5-ти минутах площадь с фонтаном, сквер вдоль Московского шоссе - есть места для прогулок и отдыха.
Звоните, чтобы посмотреть о б е квартиры, ключи у агента, показы в любое разумное время. Могу направить Вам видео.
Есть возможность применить сниженную на 30% ипотечную ставку**. Звоните, проверим, подходит ли Вам такая программа.
объекту сотрудники отдела новостроек
позвоните сейчас
или оставьте номер,
я перезвоню в течение 5 минут
Характеристики квартиры
Похожие квартиры


