3-комнатная квартира 59.8 м² на 5 этаже
5 400 000 руб.
Цена за м2: 90 301 руб.
3-комнатная квартира
Всю информацию по данной
квартире Вам предоставит
Описание
Срочно продаётся уютная трёхкомнатная квартира в Рязани, на Интернациональной улице, 11, район Канищево.
Шикарное расположение дома, на первой линии , но в небольшом отдалении от проезжей части ( нет столько пыли, шима от дороги).
Всё необходимое для комфортной жизни рядом: остановка у дома, магазины в шаговой доступности, продуктовый рынок, аптеки, поликлиники.Школа 35 и 56, детский садик 124 непосредственно во дворе, детям не переходить дорогу.
.Квартира расположена на 5 этаже 9-этажного блочного дома; не угловая, не торцевая. Дом после кап.ремонта (2024 год), чистый подъезд, тихие соседи.
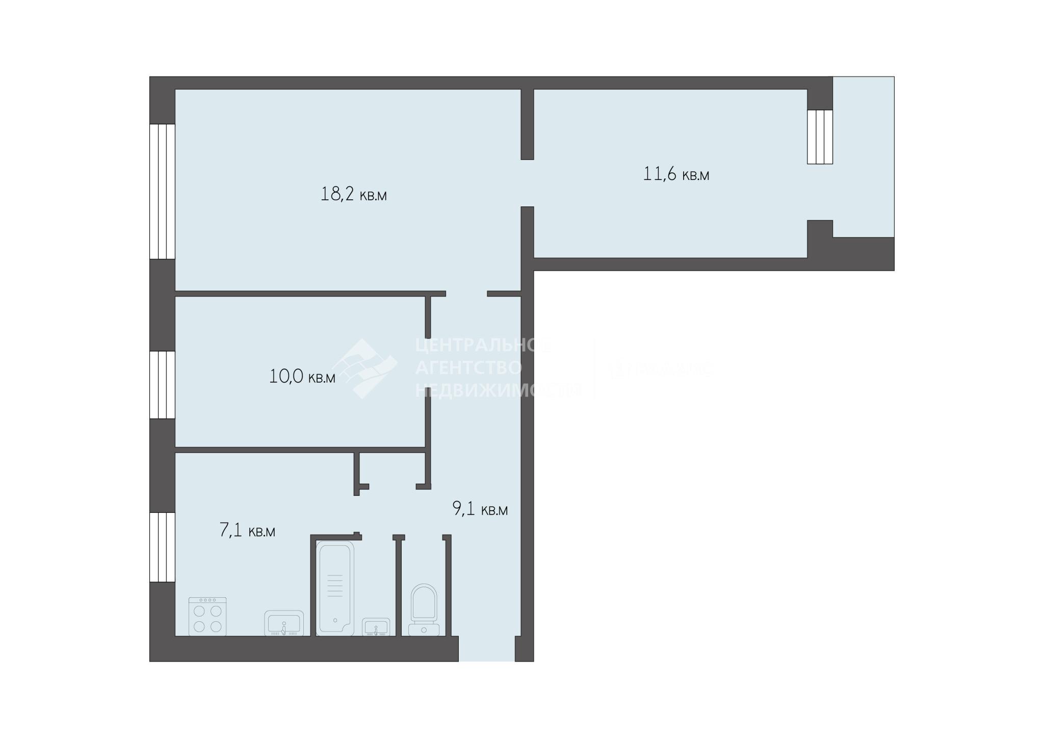
Общая площадь составляет 59,8 кв. м, из которых 40 кв. м — жилая площадь. Три комнаты имеют площадь 10 кв. м, 18,2 кв. м и 11,6 кв. м соответственно. Кухня площадью 7,1 кв. м.
КВАРТИРА ПОЛНОСТЬЮ ГОТОВА К ПРОЖИВАНИЮ. металлическая входная дверь, все окна ПВХ, включая остекление балкона, балкон отделан.
Особого внимания заслуживает ремонт в раздельном санузле т- самом хлопотном и дорогостоящем в ремонте пространстве.
ремонт выполнен в современном стиле:
-крупноформатная , сдержанная по цвету плитка под мрамор
-современный, удобный для уборки , подвесной унитаз, гигиенический душ
- новая акриловая ванна с верхним и нижним экранами( доступ к трубам обеспечен)
- новые смеситель, душ с эффектом " тропического дождя"
- стильный белый полотенцесушитель, лаконичная удобная раковина, зеркало с диодной подсветкой.
ТО, ЧЕГО НЕ ВИДНО И НЕ ПОНЯТНО НА ФОТО - ПРИГЛАШАЮ НА ПРОСМОТР УВИДЕТЬ ВООЧИЮ!
ВаЖНО: У КВАРТИРЫ ЕСТЬ НЕСОВЕРШЕННОЛЕТНИЕ СОБСТВЕННИКИ, ПОСТАНОВЛЕНИЕ ОРГАНОВ ОПЕКИ В ПРОЦЕССЕ ПОДГОТОВКИ ( дети идут на увеличение доли).
То есть юридическая часть сделки ДЛЯ ВАШЕГО ПОКОЯ под особым контролем.
квартире Вам предоставит
или оставьте номер,
я перезвоню в течение 5 минут
Характеристики квартиры
Похожие квартиры


