Дом 109.90 м² на участке 8.20 соток
Продается дом 109.90 кв.м., 8.20 сот
Стоимость: 6 900 000 руб.
Цена за м2: 62 784 руб.
Россия, Рязанский муниципальный округ, село Дубровичи?>
Всю информацию по данной
квартире Вам предоставит
Описание
Если вы ищете новый дом, требующий минимального бюджета для ремонта, чтобы уже в этот сезон проживать за городом, или если вы рассматриваете покупку дома под сдачу в аренду, то лучше варианта, пожалуй, не найти! В этой локации есть все для комфортной жизни: охраняемая территория и асфальтированная дорога, детские и спортивные площадки, магазины и школа, обустроенный водоем и пляж, лес и много "тех самых всеми желаемых" сосен вокруг!
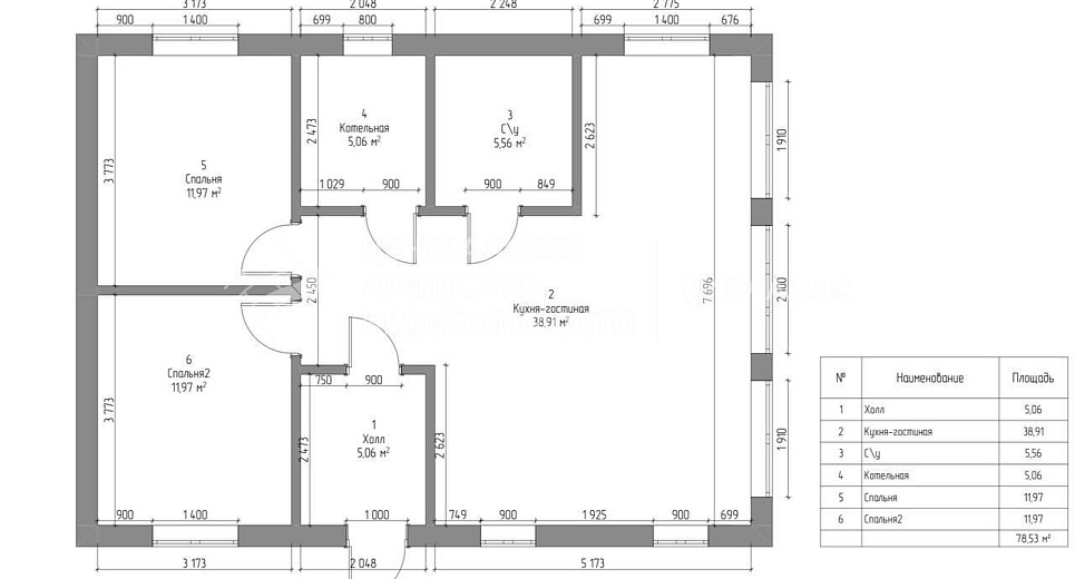
Продаётся современный стильный барнхаус, построенный в 2025 году по усиленной каркасной технологии на участке 8,22 соток. Дом расположен в закрытом коттеджном посёлке "Хорошее Место", всего в 10 минутах от Рязани.
Материалы:
⁃ Фундамент: железобетонные сваи 150×150×3000 мм
⁃ Полы: утепление 200 мм базальтовая плита; настил — фанера 15 мм; мембрана + сетка от грызунов
⁃ Стены: утепление 200 мм
⁃ Перегородки: каркас 100/150 мм; утепление 100/150 мм
⁃ Крыша и перекрытия: балки 200 мм; утепление потолка 200 мм; профлист;
- Панорамные окна ПВХ 60 мм, двухкамерные стеклопакеты
- Входная металлическая дверь с терморазрывом
- Вторая входная дверь — утеплённая ПВХ
Коммуникации:
• Электричество — 15 кВт
• Вода — скважина
• Канализация — септик, кольца 3+2 переливные
• Отопление — водяные тёплые полы по всему дому (электрический котёл, коллектор, шкаф)
• Газ по границе
Дизайн проект в подарок!
квартире Вам предоставит
или оставьте номер,
я перезвоню в течение 5 минут
Характеристики
Похожие объекты


