Дом 130.00 м² на участке 10.00 соток
Продается дом 130.00 кв.м., 10.00 сот
Стоимость: 9 000 000 руб.
Цена за м2: 69 231 руб.
Россия, Рязанский муниципальный округ, село Дубровичи, Дубовая улица, 5?>
Всю информацию по данной
квартире Вам предоставит
Описание
Дом с удобной планировкой и террасой для семьи из 3-4 человек.
Фасад выполнен из декоративной штукатурки типа «короед», в сочетании цветов белого и светло-коричневого цвета. Цоколь дома облицован декоративным камнем под кирпич WhiteHills LondonBrick 304-60.
Кровельный материал – гибкая черепица ТехноНиколь Фазенда Коричневый. Цвет водосточной системы темно-коричневый Ral 8017.
Отлив металлический по контуру цоколя темно-коричневого цвета Ral 8017. Покрытие террасы, крыльца и ступеней выполнено из ДПК декинга коричневого цвета на металлической подсистеме (древесно-полимерный композит), ограждения ДПК коричневого цвета. Окна и двери коричневого цвета.
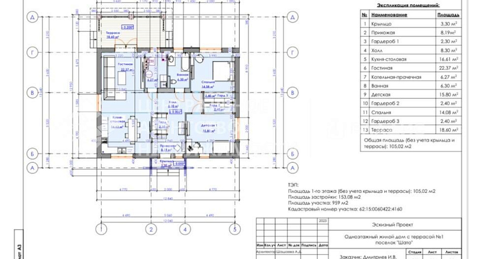
Предусмотрена чердачная лестница с выходом на чердак для организации дополнительного хранения вещей. На этаже располагается: крыльцо, прихожая с гардеробной, просторный холл, кухня-столовая и гостиная с выходом на террасу, котельная-прачечная, ванная комната, спальня и детская комната с собственными небольшими гардеробными системами.
Характеристики
Технико-экономические показатели (ТЭП):
Жилая площадь: 29,88 м2
Общая площадь дома (без учета крыльца и террасы): 105,02 м2.
Площадь крыльца: 3,3 м2.
Площадь террасы: 18,6 м2.
Площадь застройки: 153,08 м2
Площадь территории ~ 10 соток.
КОМПЛЕКТАЦИЯ 1
Дом с межкомнатными, отштукатуренными перегородками. Система отопления: радиаторы и электрический котел. Электрическая разводка под установку розеток и выключателей. Канализация с септиком из бетонных колец. Белые пластиковые подоконники. Устройство вытяжки под кухонный гарнитур и электрический котел. Электричество 7 кВт. Газификация. Система теплого пола по всей нежилой площади. Стяжка пола. Отмостка из бетона. Индивидуальная водяная скважина. Готовое машиноместо. Готовый доступ к чердачному помещению. Передняя линяя забора выполнена из евроштакетника в едином стиле с калиткой и распашными воротами.
КОМПЛЕКТАЦИЯ 2
Дом с межкомнатными, отштукатуренными перегородками и покрашенными стенами. Утепленная стяжка пола. Напольное покрытие комнат из ламината. Белые пластиковые подоконники. Прихожая и санузел: напольная керамическая плитка с функцией теплого пола. Отделка санузла: декоративная штукатурка. Санузел оборудован сантехникой. На кухне установлен шкаф с мойкой. Натяжные потолки со светильниками. Межкомнатные двери. Система отопления: радиаторы и электрический котел. Электрическая разводка с установленными розетками и выключателями. Канализация с септиком из бетонных колец. Устройство вытяжки под кухонный гарнитур и электрический котел. Электричество 7 кВт. Газификация. Индивидуальная водяная скважина с насосом. Выдвижная лестница к чердачному помещению. Передняя линяя забора выполнена из евроштакетника в едином стиле с калиткой и распашными воротами.
Стоимость: от 9 300 000,00 Руб.
квартире Вам предоставит
или оставьте номер,
я перезвоню в течение 5 минут
Характеристики
Похожие объекты


